Prachtig gelegen gignatisch perceel landbouwgrond van 71515 m² nabij de Schelde. Vrij van pacht eind 2027. Ag, Gvg, Vkr, Gvv, Gdv, PD.------Prachtig gelegen...
Grond te koop
€ 310000
Eke, Oost-Vlaanderen
1.215 m²
Aan de rand van Nazareth-De Pinte bevindt zich deze ruime bouwgrond zonder bouwverplichting. Op het perceel staat momenteel een af te breken woning, waardoor je...
Bouwgrond te koop in Nazareth-De Pinte
€ 350000
Eke, Oost-Vlaanderen
Deze bouwgrond is gelegen in het rustige en groene Nazareth-De Pinte en beschikt over een perceeloppervlakte van 1.215 m². Dit perceel biedt een uitstekende...
Bouwgrond te koop in Nazareth-De Pinte
€ 549000
Eke, Oost-Vlaanderen
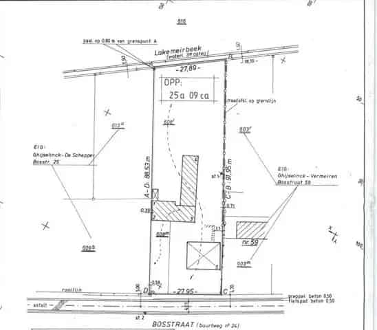
Op de grens van De Pinte en Nazareth bevindt zich dit uitzonderlijke perceel bouwgrond van maar liefst 2.509 m². De ligging is niet alleen rustig,...
Bouwgrond te koop in Nazareth-De Pinte
€ 310000
Eke, Oost-Vlaanderen
Aan de rand van Nazareth-De Pinte bevindt zich deze ruime bouwgrond zonder bouwverplichting. Op het perceel staat momenteel een af te breken woning, waardoor...
PERCEEL BOUWGROND VOOR OPEN BEBOUWING
Eke, Oost-Vlaanderen
Deze bouwgrond heeft een oppervlakte van 8a 65ca en is bestemd voor open bebouwing.
Perceel grond is gelegen in de Grenadierslaan (aan de hoek van de...
Bouwgrond te koop in Nazareth
€ 347500
Eke, Oost-Vlaanderen
Deze ruime bouwgrond van maar liefst 1.367 m² is gelegen op de grens tussen Eke en Zevergem, en biedt u niet alleen een uitgelezen locatie,...
PERCEEL BOUWGROND VOOR OPEN BEBOUWING
Eke, Oost-Vlaanderen
Deze bouwgrond heeft een oppervlakte van 10a 58ca en is bestemd voor open bebouwing.
Perceel grond is gelegen in de Grenadierslaan (naast de hoek van de...